Così si organizza l'ospedale di Locarno nelle parole del direttore Merlini. Altri letti per le cure intense in arrivo. Llamas: un paziente intubato al giorno

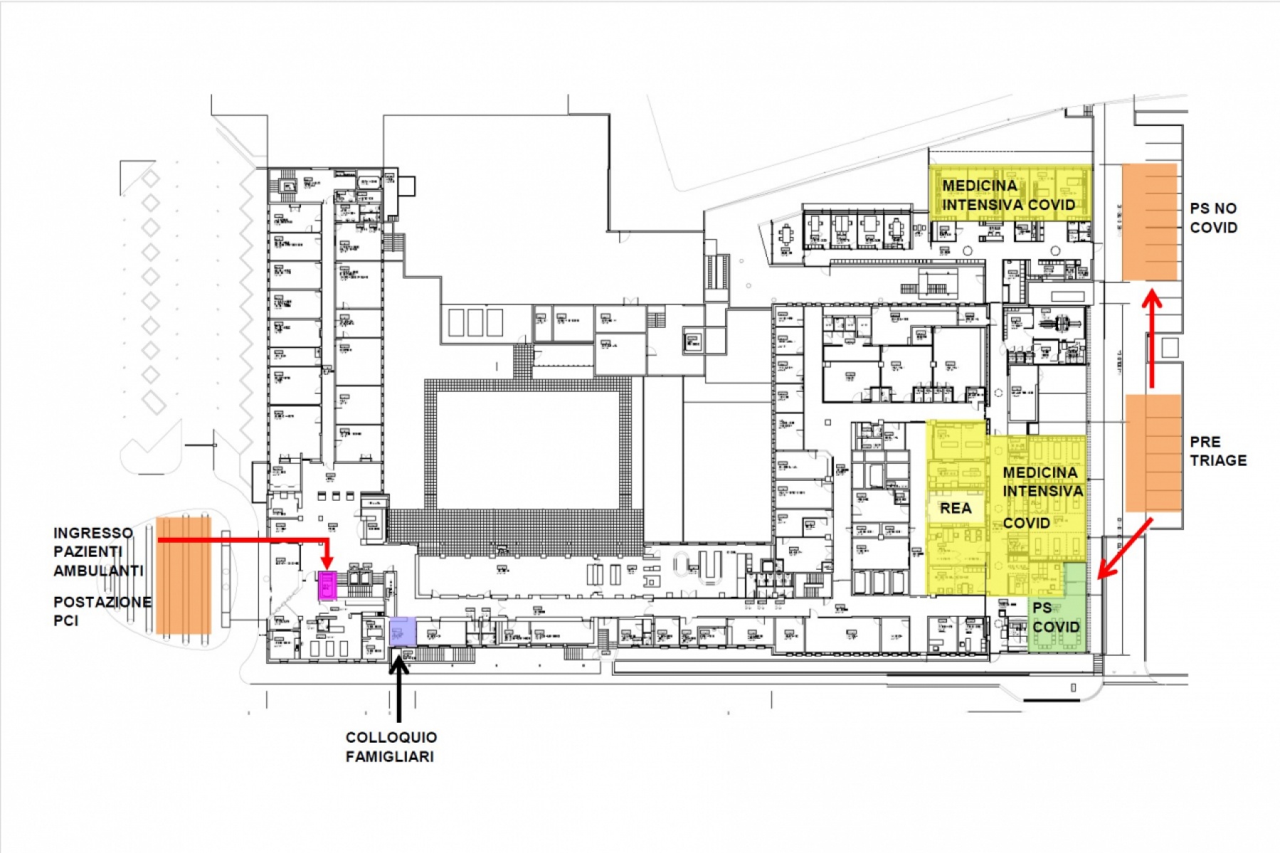
Qui, da lunedì scorso, senza mascherina non si entra. Eccoci alla Carità, l'ospedale-fortino contro il coronavirus, tra chi soffre e chi cura. Quello di Locarno è il nosocomio dell'Ente ospedaliero cantonale incaricato dalle autorità della presa a carico delle persone contagiate in Ticino dal Covid-19. Il primo importantissimo filtro è all'ingresso principale: una tendina della Protezione civile, dove si ricevono mascherina e istruzioni (va pinzata stretta sul naso) e dove ci si disinfetta le mani. Azioni diventate la normalità in questa situazione d'emergenza. Il secondo, altrettanto fondamentale, è appena varcata la soglia della Carità: nell'atrio il personale dell'ospedale verifica se chi entra ha l'autorizzazione e registra. Misure rigide, rigidissime.
E poi c'è il fronte di questa lotta contro il virus. Sono altre due tendine arancioni, sempre della Pci, piazzate all'esterno del Pronto soccorso. A piantonarle, una pattuglia della polizia (stamattina c'erano un paio di agenti della Comunale di Losone). Una è per il "triage": i pazienti con patologie non riconducibili al coronavirus vengono spostati nell'altra tenda, trasformata in un temporaneo pronto soccorso. Damiano Salmina, caposervizio urgenze: "I disagi sono dati dagli spazi ridotti, ma la struttura funziona". Le persone infette dal coronavirus vengono invece destinate nei reparti appositamente allestiti all'interno dell'ospedale per accoglierle. I casi più gravi vengono sistemati nei locali dell'originario Pronto soccorso, tramutato in reparto di terapia intensiva per il Covid-19. La fotografia della situazione è nelle eloquenti parole del direttore sanitario della Carità Michael Llamas: "Abbiamo una persona intubata al giorno. Se all'inizio erano soprattutto anziani, ora fra i ricoverati abbiamo anche 40enni".
La visita guidata al fronte avviene dopo la conferenza stampa al quarto piano del nosocomio, nella sala Domenighetti. In piena emergenza da coronavirus, la Carità e l'Ente ospedaliero cantonale si stanno riorganizzando. Ed è una corsa contro il tempo. Nel nosocomio di Locarno, fa sapere il suo direttore Luca Merlini, "da domani alle 8 i letti per le cure intense saranno venticinque, mentre per quelle generali cento". Tuttavia la situazione muta rapidamente. Bisogna quindi pianificare senza indugi. "Da mercoledì 18 l'ospedale avrà trenta letti per la terapia intensiva, eventualmente due in più, e altri centottanta per la presa a carico di pazienti affetti dal virus, ma non in stato critico", spiega ancora Merlini.

Novecento le persone che lavorano nella struttura ospedaliera, tra sanitari (Merlini: "Duecento circa i medici"), addetti all'amministrazione e altri operatori. A chi non appartiene a queste categorie professionali, la Carità sarà presto inaccessibile. "Da lunedì prossimo l'ingresso sarà vietato, eccetto per i familiari dei pazienti Covid-19 per l'accompagnamento in fin di vita"; aggiunge Merlini. Per i pazienti che non necessitano di cure mediche legate al coronavirus, verranno dirottati, a seconda delle patologie, verso altri ospedali cantonali. I primi rinforzi: "Entro questo lunedì, da Bellinzona arriveranno diciassette infermieri", afferma Chiara Canonica, caposettore infermieristico. Di più. "I turni - continua - sono stati modificati. Una giornata di lavoro non è più divisa in tre turni di 8 ore, bensì in due di 12 ore". Giovedì "abbiamo avuto il primo paziente Covid-19 in sala operatoria", indica il dottor Llamas. "Il coronavirus è una malattia che si conosce solo da un paio di mesi: l'evoluzione può essere estremamente rapida - avverte il direttore sanitario -. Siamo in contatto anche con medici italiani, rafforzando così la rete. Ci stiamo di fatto inventando una nuova medicina. Stiamo fra l'altro redigendo una procedura standard con una linea minima comune di presa a carico dei pazienti Covid-19, per il personale in arrivo". Previsioni sull'arrivo del picco in Ticino? "Non ne abbiamo idea", taglia corto Llamas. E qualora la situazione si acuisse repentinamente, rendendo insufficienti le risorse sanitarie? "Siamo costantemente in contatto col nostro gruppo etico composto di più specialisti che analizza ciascun caso. Le decisioni non saranno mai lasciate al singolo", risponde il responsabile sanitario del nosocomio locarnese. Uno scenario che tutti vogliamo scongiurare. "Ogni sforzo e ogni misura che vengono attuati sono finalizzati proprio a diluire il numero di pazienti Covid-19", per evitare che una concentrazione eccessiva di malati provochi il collasso della struttura, sottolinea Luca Merlini.
La vita continua e allora c'è anche spazio per qualche battuta, forse involontaria. "Arrivederci signora", dice il milite della Protezione civile nella tendina piazzata all'ingresso principale. E lei, una donna anziana, che lascia l'ospedale dopo aver visitato un conoscente: "Arrivederci? Speriamo di no".